THE MORROW
Home
Layout
Amenities
Locations
Images
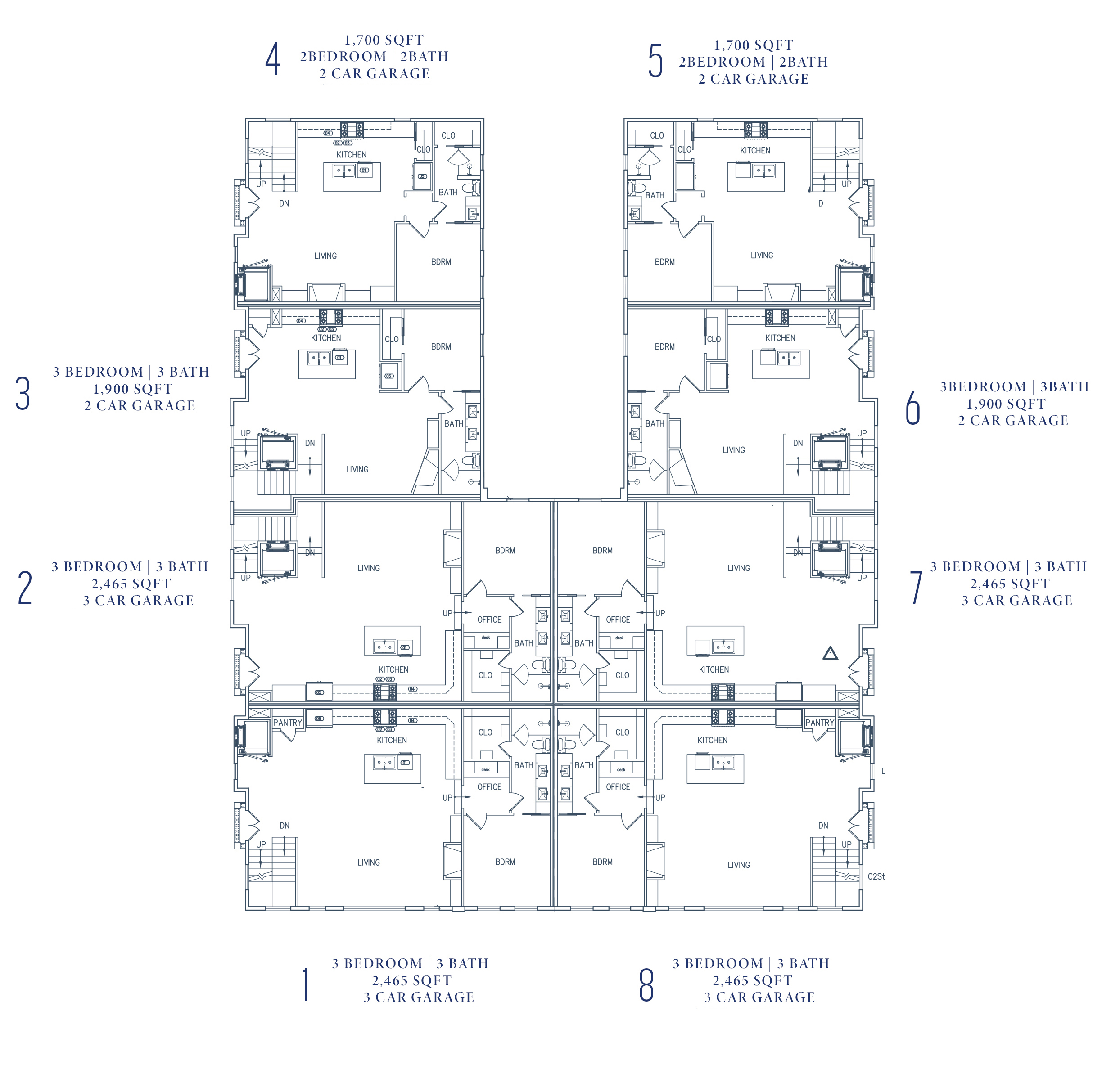
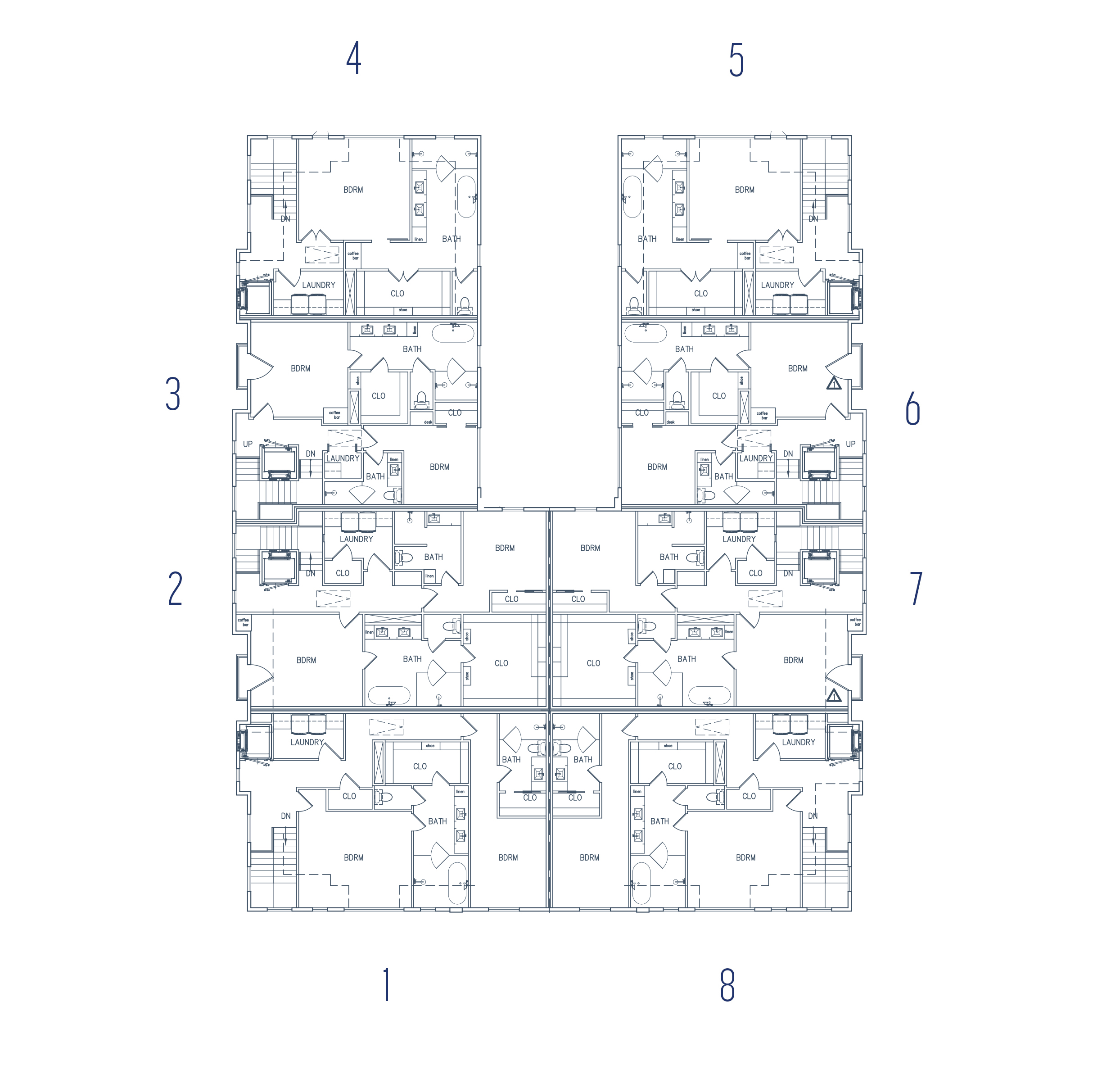
STANDARD LAYOUT
MORROW
BUILDING LAYOUT
2ND FLOOR LIVING, KITCHEN, GUEST BEDROOM, OFFICE
3RD FLOOR PRIMARY BEDROOM, LAUNDRY, SECONDARY BEDROOM
Unit 3 - 2 Bed | 2 Bath | 2 Car Garage
Unit 5 - 3 Bed | 3 Bath | 2 Car Garage
Unit 8 - 3 Bed | 3 Bath | 3 Car Garage